Giữa phố thị đông đúc và chật chội, một căn nhà có cả vườn cây và ao cá thu hút mọi ánh nhìn

(Tổ Quốc) - Với vẻ mộc mạc và gần gũi, phong cách xây dựng hiện đại và lạ mắt khiến ngôi nhà nổi bật giữa lòng khu phố.

Ngôi nhà của một gia đình bốn người nằm trong một khu phố đông đúc ở Quận 11, Thành phố Hồ Chí Minh. Diện tích đất xây dựng 185m2 cũng bị hạn chế, không vuông vắn. Vị trí nhà nằm ở hướng Tây - Tây Nam nên có bức xạ mặt trời gay gắt và nắng nóng trực tiếp vào buổi trưa.

 

Giữa phố thị đông đúc và chật chội, một căn nhà có cả vườn cây và ao cá thu hút mọi ánh nhìn - Ảnh 1.

Chính vì vậy, gia chủ mong muốn một môi trường sống mát mẻ, nhiều cây xanh để giảm bớt tác động tiêu cực của thời tiết. Để làm được điều này, các kiến trúc sư đã thiết kế "tấm áo" chống nóng cho ngôi nhà bằng những mảng xanh trải dài từ trong ra ngoài và bức tường gạch với nhiều lỗ thông gió.

Giữa phố thị đông đúc và chật chội, một căn nhà có cả vườn cây và ao cá thu hút mọi ánh nhìn - Ảnh 2.

Kiến trúc sư đã lên kế hoạch cho những cánh cửa nhiều kích cỡ và ít nhất một khu vườn trên mỗi tầng để đảm bảo rằng ngôi nhà được bao quanh bởi nhiều loại thực vật.

Mặt tiền của ngôi nhà 5 tầng được ốp 25.000 viên gạch so le, giúp tạo ra vô số "lỗ thở" và cản gió, luồng không khí cũng như ánh nắng gay gắt chiếu vào không gian bên trong.

Giữa phố thị đông đúc và chật chội, một căn nhà có cả vườn cây và ao cá thu hút mọi ánh nhìn - Ảnh 3.

Với vẻ mộc mạc và gần gũi, phong cách này khiến ngôi nhà nổi bật giữa lòng khu phố. Để cải thiện vi khí hậu, ngăn bụi, giảm nhiệt độ khi gió nóng thổi vào bên trong, hồ cá được đặt phía trước nhà, xung quanh là cây xanh. Gia chủ có thể quan sát hồ cá và cây xanh bên ngoài phòng khách và thư giãn giữa thiên nhiên.

Giữa phố thị đông đúc và chật chội, một căn nhà có cả vườn cây và ao cá thu hút mọi ánh nhìn - Ảnh 5.

Kiến trúc sư lựa chọn màu nâu và màu be làm tông màu chủ đạo cho toàn bộ nội thất và vật liệu chủ đạo là gỗ, kính, sàn bê tông bởi gia chủ thích sự tối giản, mộc mạc. Khu vực sinh hoạt chung của gia đình bao gồm phòng khách, khu vực tiếp khách và nhà bếp được bố trí ở tầng một.

Giữa phố thị đông đúc và chật chội, một căn nhà có cả vườn cây và ao cá thu hút mọi ánh nhìn - Ảnh 6.

Thay vì sử dụng những bức tường gạch để phân chia các khu vực trong căn nhà, những bức tường bằng kính đã được thế chỗ vào đó.

Cửa kính trượt ngăn chia không gian bên trong với môi trường bên ngoài mang lại cảm giác thoáng đãng, rộng lớn và gần gũi với thiên nhiên. Tùy thuộc vào thời gian trong ngày, ánh sáng xuyên qua bức tường gạch sẽ tạo ra một chuyển động hấp dẫn.

Giữa phố thị đông đúc và chật chội, một căn nhà có cả vườn cây và ao cá thu hút mọi ánh nhìn - Ảnh 7.

Ban công rộng với cây xanh bao quanh các phòng ngủ. Để ngăn bụi và tiếng ồn, cây xanh được bố trí thành "tấm khiên" dọc ban công và hành lang.

Vì mái nhà và sân thượng là nơi tập trung phần lớn bức xạ nhiệt của ngôi nhà và ở khu vực này, nhiệt độ là cao nhất nên trong quá trình sử dụng, nhiều người thường bỏ qua chúng. Để tạo không gian yên bình hơn, kết nối với thiên nhiên đồng thời giảm bức xạ nhiệt cho mái nhà, kiến trúc sư đã tư vấn cho gia chủ thiết lập một khu vườn nhiệt đới và trồng rau trên sân thượng.

Giữa phố thị đông đúc và chật chội, một căn nhà có cả vườn cây và ao cá thu hút mọi ánh nhìn - Ảnh 8.

Khu vườn rộng 45m2 này có sàn hai lớp phủ vải địa kỹ thuật chống thấm. Cỏ được trồng trong lớp đất cao 15cm. Các loại cây xanh được sử dụng trong dự án này có ưu điểm là dễ trồng và dễ sống.

Giữa phố thị đông đúc và chật chội, một căn nhà có cả vườn cây và ao cá thu hút mọi ánh nhìn - Ảnh 9.

Sân hiên bao gồm không gian tiếp khách, nơi mọi người có thể thư giãn và nhâm nhi tách trà cũng như khu vực trồng rau xanh đều được trang bị hệ thống tưới tự động. Mái vòm lưới tạo ra một khu vực thoáng mát, đồng thời che chắn cho thảm thực vật bên dưới khỏi nắng và mưa.

Giữa phố thị đông đúc và chật chội, một căn nhà có cả vườn cây và ao cá thu hút mọi ánh nhìn - Ảnh 11.

Giữa phố thị đông đúc và chật chội, một căn nhà có cả vườn cây và ao cá thu hút mọi ánh nhìn - Ảnh 12.

Giữa phố thị đông đúc và chật chội, một căn nhà có cả vườn cây và ao cá thu hút mọi ánh nhìn - Ảnh 13.

Giữa phố thị đông đúc và chật chội, một căn nhà có cả vườn cây và ao cá thu hút mọi ánh nhìn - Ảnh 14.

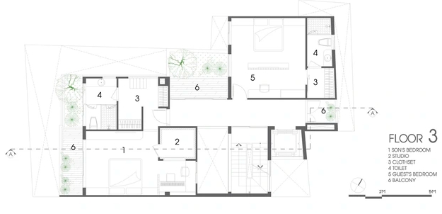
Giữa phố thị đông đúc và chật chội, một căn nhà có cả vườn cây và ao cá thu hút mọi ánh nhìn - Ảnh 15.

Sơ đồ bố trí trong ngôi nhà.


Pha Lê

Tin mới